食品振動篩分機簡介
食品振動篩分機振動形式特殊,物料運動軌跡和振幅可調,滿足不同工藝要求。
食品振動篩分機特點
- 食品振動篩分機的篩分效率高,既可概略分級,食品振動篩分機又可進行精細篩分或過濾;
- 食品振動篩分機體積小、重量輕、安裝移動方便;換網容易,食品振動篩分機的篩網壽命長、清洗方便、操作簡單;
- 食品振動篩分機全封閉,無粉塵溢散,食品振動篩分機有利于善勞動條件;
- 食品振動篩分機粗、細料自動分級排出,能實現自動化作業;
- 出料口繞軸線360°任意設置,食品振動篩分機便于布置配套設備;
- 食品振動篩分機耗能小,噪音低、滿足節能、環保要求;保養簡單,食品振動篩分機可單層或多層使用。

食品振動篩分機技術參數
| 型號 | 篩網直徑(mm) | 處理量(t/h) | 振動頻率(min-1) | 電動功率(kw) | 重量(kg) | 備注 |
| YZ-1500 | Ф1500 | 9-14 | 930 | 2.2 | 750 | 處理量按標準物料河砂計算(1.67t/m3)選型時按處理物料比重換算 |
| YZ-1000 | Ф1000 | 4-6 | 930 | 1.1 | 500 | |
| YZ-800 | Ф800 | 2-4 | 930 | 0.75 | 400 | |
| YZ-600 | Ф600 | 1.5-2 | 1450 | 0.75 | 300 | |
| YZ-400 | Ф400 | 1-1.5 | 1450 | 0.25 | 160 |
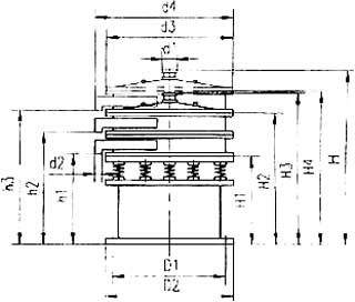
外型尺寸:
| 型號 | d1 | d2 | d3 | d4 | D1 | D2 | h1 | h2 | h3 | H1 | H2 | H3 | H4 | H | 有效面積 (m2) |
| YZ-1500 | 280 | 200 | 1650 | 2280 | 1420 | 1450 | 640 | 830 | 1020 | 660 | 1040 | 1300 | 1230 | 1490 | 1.77 |
| YZ-1000 | 220 | 140 | 1120 | 1520 | 975 | 1040 | 565 | 695 | 825 | 580 | 840 | 1040 | 970 | 1170 | 0.74 |
| YZ-800 | 200 | 130 | 850 | 1160 | 780 | 850 | 540 | 665 | 790 | 560 | 810 | 950 | 935 | 1075 | 0.44 |
| YZ-600 | 130 | 110 | 710 | 980 | 610 | 660 | 480 | 600 | 720 | 490 | 730 | 850 | 850 | 970 | 0.265 |
| YZ-400 | 120 | 100 | 470 | 700 | 400 | 445 | 435 | 525 | 615 | 440 | 620 | 700 | 700 | 780 | 0.1 |
訂貨須知:
該機可配二~四層分級篩網,訂貨時請注明型號規格,所需配備篩網要求、材料、孔狀、目數、訂貨數量。
