埋刮板輸送機特點
埋刮板輸送機具有結(jié)構(gòu)簡單,使用可靠,造價低廉,輸送距離長,并能輸送灼熱物料等優(yōu)點,
埋刮板輸送機用途

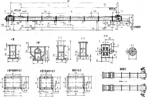
型 號 | B | B1 | B2 | B3 | B4 | b | t | C | D | d (D4) gc3 | d1 (d4) | F |
MS16 | 160 | 410 | 260 | 305.5 | 510 | 16 | 58.5 | 0 | 258.69 | 80 | 55 | 390 |
MS20 | 200 | 510 | 300 | 268.5 | 610 | 20 | 74.2 | 0 | 324.01 | 95 | 70 | 410 |
MS25 | 250 | 600 | 350 | 425.5 | 700 | 24 | 90.0 | 0 | 412.86 | 110 | 85 | 440 |
MS32 | 320 | 800 | 420 | 495.0 | 900 | 32 | 116.5 | 130 | 514.76 | 135 | 110 | 650 |
MS40 | 400 | 890 | 500 | 578.0 | 990 | 36 | 137.2 | 150 | 514.76 | 160 | 130 | 650 |
型 號 | F1 | f | f1 | H | H1 | -H2 | H3 | H4 | h | h1 | h2 | J |
MS16 | 150 | 88 | 650 | 289.0 | 470 | 440 | 450 | 261 | 100 | 161 | 60 | 350 |
MS20 | 150 | 108 | 700 | 329.0 | 530 | 480 | 530 | 296 | 100 | 196 | 80 | 420 |
MS25 | 150 | 128 | 750 | 389 | 630 | 540 | 660 | 346 | 100 | 246 | 100 | 510 |
MS32 | 230 | 168 | 1070 | 572.0 | 764 | 723 | 820 | 408 | 100 | 308 | 150 | 670 |
MS40 | 230 | 198 | 1070 | 612.5 | 764 | 763 | 860 | 408 | 100 | 308 | 150 | 800 |
型 號 | J1 | J2 | J3 | L | L0 | L1 | L2 | L3 | L4 | L5 | n×l | n1×l1 | n2×l2 |
MS16 | 150 | 550 | 450 | 800 | 1500 | 700 | 2×115 | 2×160 | 4×120 | ||||
MS20 | 150 | 610 | 510 | 850 | 1500 | 920 | 2×135 | 3×130 | 4×145 | ||||
MS25 | 150 | 650 | 550 | 900 | 1500 | 1080 | 2×160 | 3×160 | 5×134 | ||||
MS32 | 230 | 900 | 800 | 1270 | 2000 | 1145 | 3×130 | 4×160 | 6×145 | ||||
MS40 | 230 | 900 | 800 | 1270 | 2000 | 1145 | 3×156 | 5×154 | 6×180 | ||||
型號 | n3×l3 | N-d2 | N1-d3 | N2-d4 | M | 行程S | S1 | δ | δ | X | Y |
MS16 | 4×130 | 8-12 | 12-12 | 12-12 | 240 | 150 | 300 | 6 | 4.5 | ||
MS20 | 4×145 | 10-12 | 14-12 | 12-12 | 280 | 200 | 380 | 6 | 4.5 | ||
MS25 | 4×155 | 10-12 | 16-12 | 12-12 | 330 | 250 | 430 | 6 | 4.5 | ||
MS32 | 6×145 | 14-14 | 20-14 | 18-14 | 420 | 250 | 450 | 6 | 6.0 | ||
MS40 | 6×145 | 16-14 | 22-14 | 18-14 | 500 | 250 | 450 | 6 | 6.0 |

